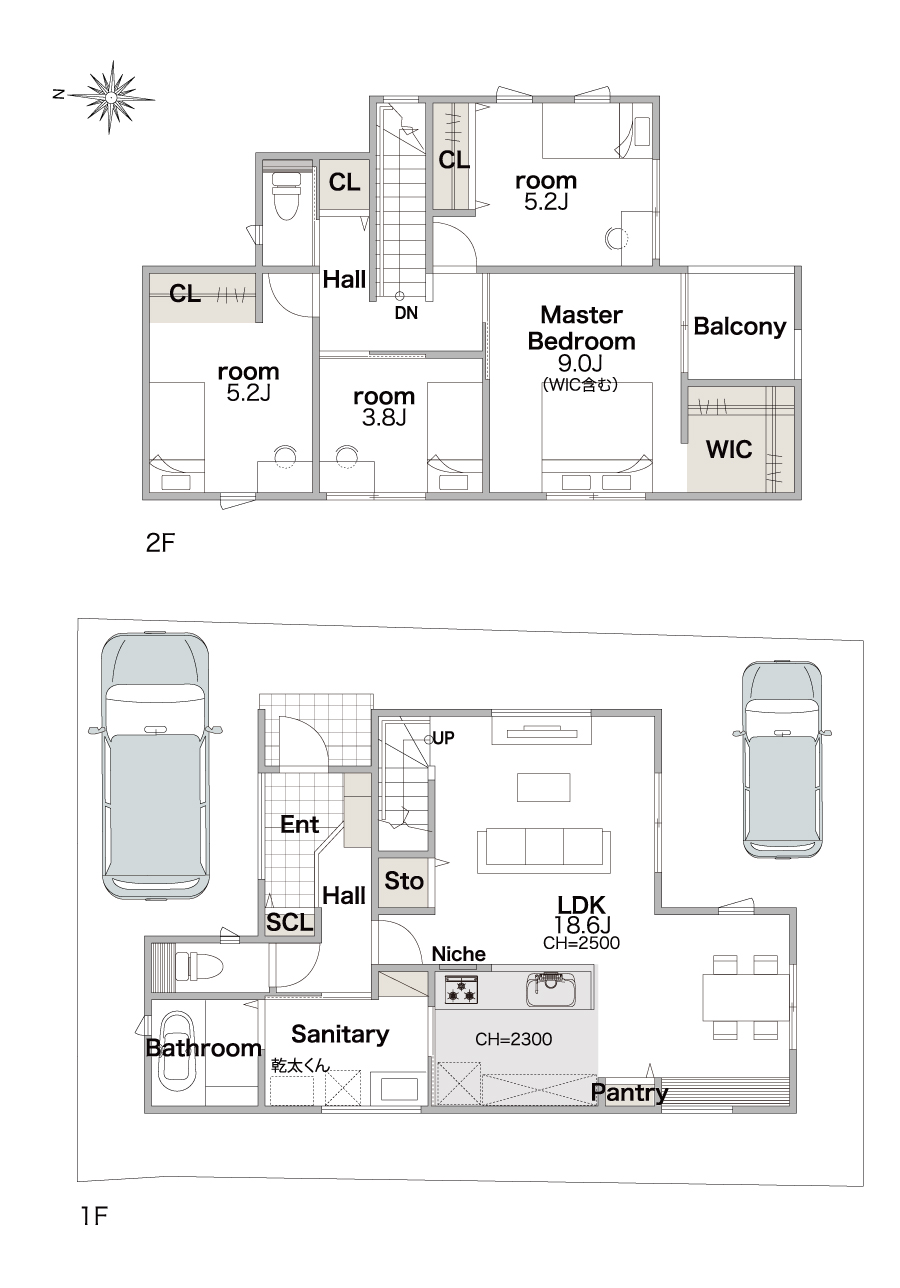
■玄関から水回りへの動線がスムーズで、帰宅後すぐの手洗いや入浴もスムーズです。
■約18.6帖の広々LDKを確保。家族が集まりやすく家具の配置も自由度高めです。
■シューズクローク、パントリーなどの収納を設置。日々の片付けがしやすくなっています。
■乾太くんを標準装備。天候に左右されずに効率的な洗濯が可能です。
■全居室を5帖以上のゆとりある広さに設計。子ども部屋も快適に使えます。
■主寝室は約7帖の広さを確保し、ウォークインクロゼット、書斎スペースも備えています。
■各部屋にクロゼットを設置。家族それぞれの収納スペースをしっかり確保しています。
■南向きのインナーバルコニーは陽当たりが良く、洗濯物がよく乾きます。
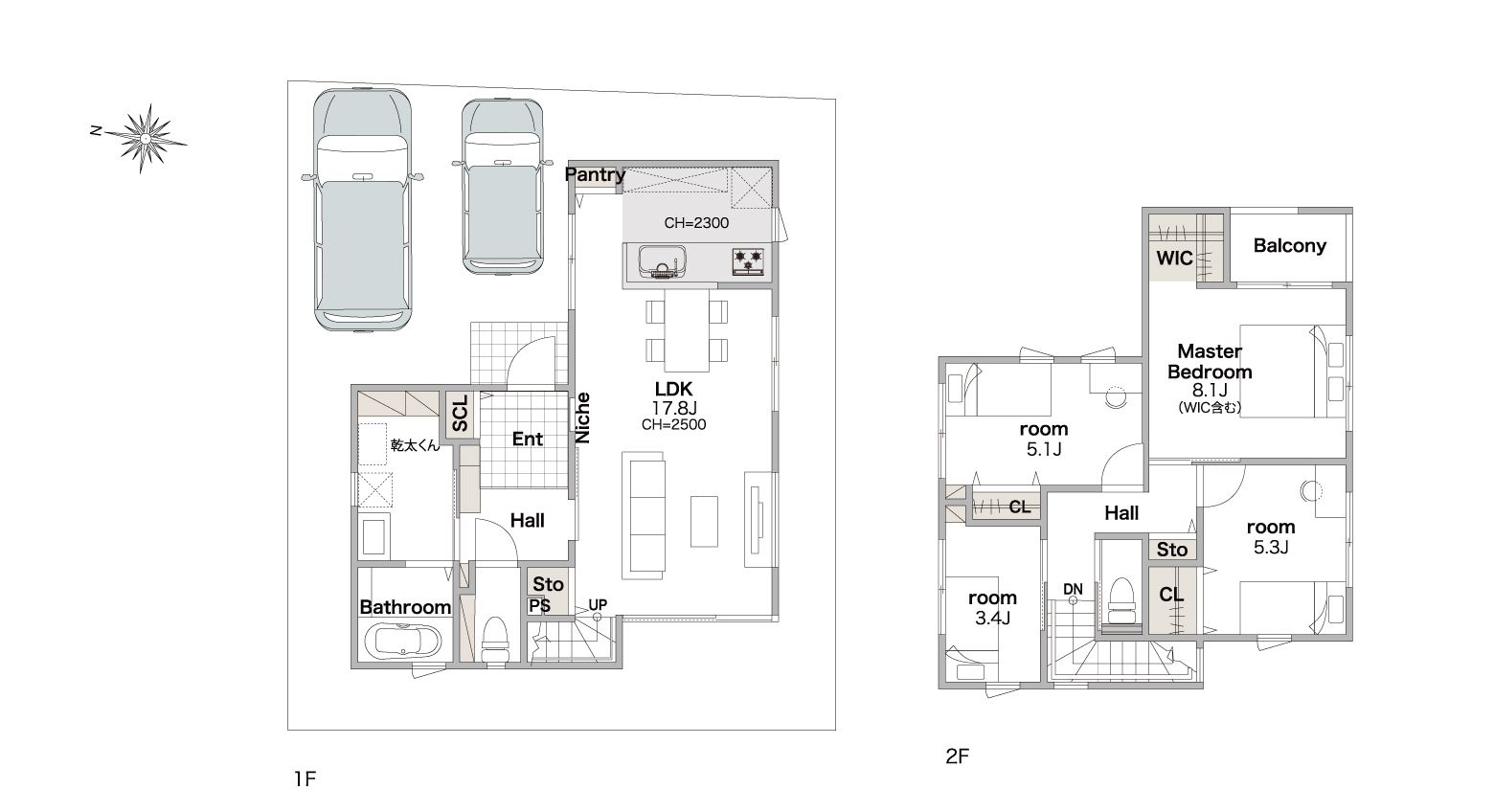
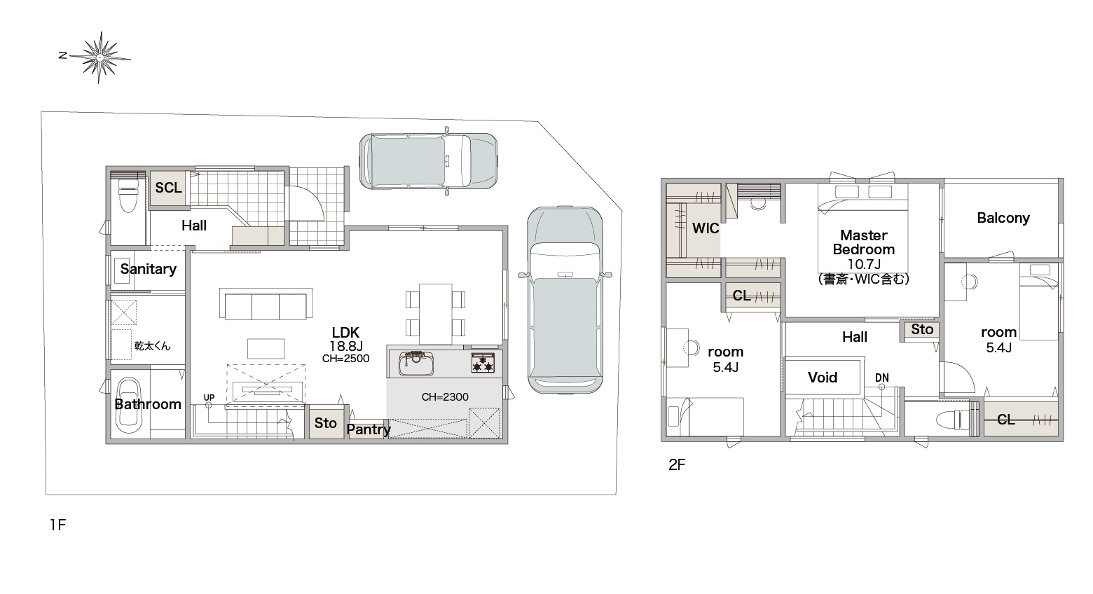
■LDKは約18.8帖と広く設計しており、家族全員がくつろげる空間になっています。
■キッチン横にはパントリーがあり、調理器具や食品の収納に便利です。
■リビング上部の吹抜が、明るく開放的な空間を演出します。
■乾太くんを標準装備。天候に左右されずに効率的な洗濯が可能です。
■1階にも収納スペースをしっかりと確保。生活感を抑えた空間がつくれます。
■主寝室は約8.1帖。ウォークインクロゼット付きの快適な寝室です。
■全居室を5帖以上の広さに設計。各自の部屋として十分な広さです。
■バルコニーや各居室が明るく、日当たりの良い快適な暮らしができます。