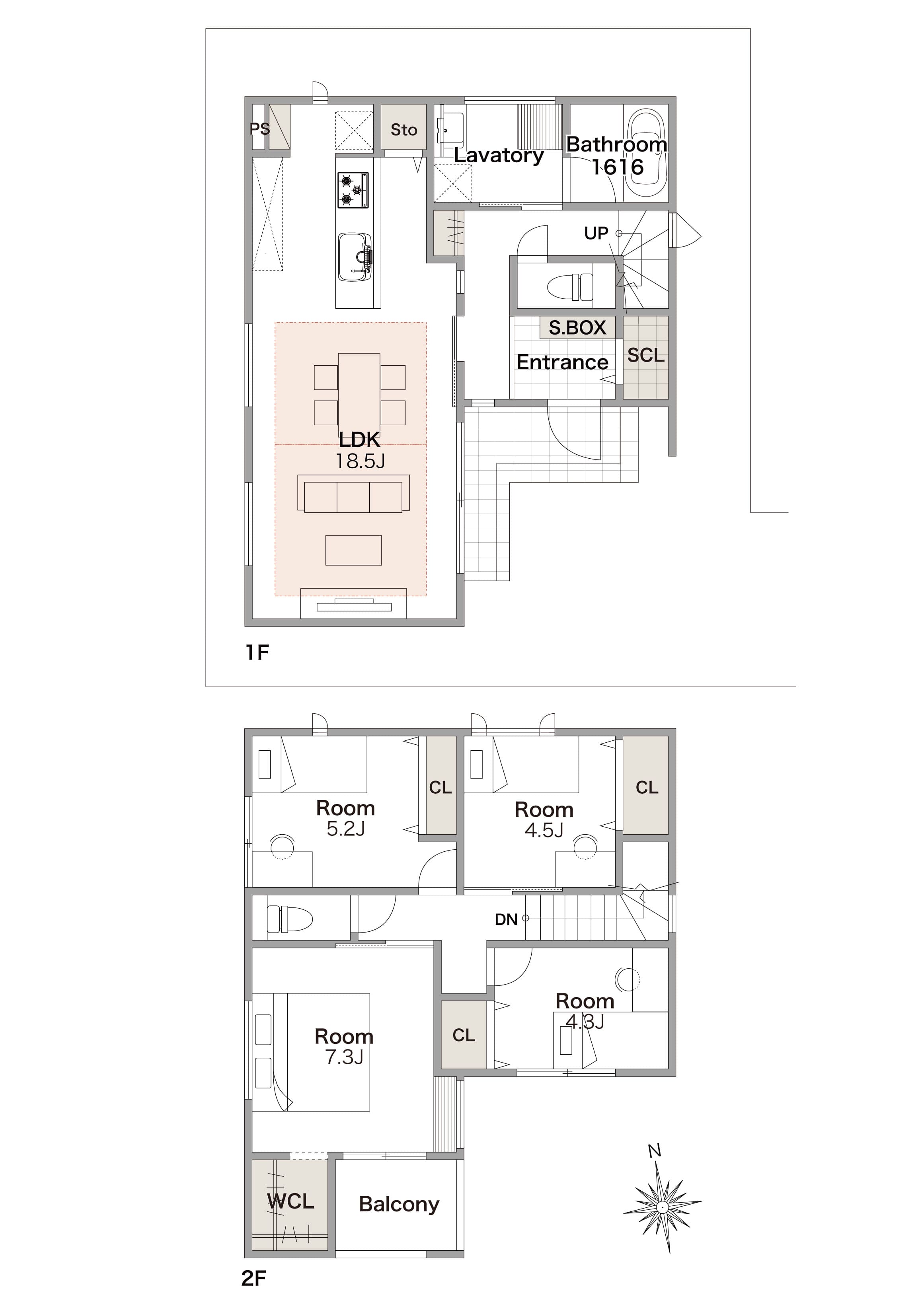
■約18帖のLDKは、リビング・ダイニング・キッチンが一体となった、家族がゆったり過ごせる空間です。
■廊下階段を採用。プライベートを重視したプランニングです。
■玄関にある大容量のSCLには、靴やアウトドア用品などをすっきり収納可能。
■洗面室はゆとりある広さを確保。玄関ホールからアクセスできる便利な動線です。
■各居室に収納を備えており、衣類や荷物をしっかり収められるプランです。
■主寝室にはWCLを設置。衣類や大きな荷物も簡単に収納可能です。
■2階には4部屋を配置。子ども部屋や書斎など、ライフスタイルに合わせてご利用いただけます。
■バルコニーは南・東側に面しており、日当たり良好。洗濯物干しにも最適です。
■LDKは約18.5帖で、ゆとりある広さ。家族がゆったりくつろげる開放的な空間です。
■キッチン・リビング・ダイニングがまとまった配置で、家族とのコミュニケーションが取りやすくなっています。
■玄関にはSCLを設置。ベビーカーやアウトドア用品などもすっきり収納できます。
■洗面室・浴室などの水回りを1階に集約。家事動線に配慮した使いやすいプランです。
■各居室のクロゼットには、衣類や生活用品をしっかり収納できます。
■主寝室のWCLは、衣類や大きな荷物の収納が簡単です。
■2階には4部屋を配置。ライフスタイルの変化に合わせて使い方を変えられます。
■バルコニーは東向き。目の前は駐車場スペースで開けており、陽当たり良好です。
■約18.3帖のLDKは、3方向に窓があり、陽当たり良好です。
■LDKはダイニングスペースをリビングと程よく分けたレイアウト。食事とくつろぎの空間にメリハリをつけられます。
■玄関にはSCLと廊下収納を設置。靴や外用品も整理できます。
■洗面室はゆとりある広さを確保。家事時間を短縮できます。
■キッチン横には収納スペースを設置。食品や日用品をすっきり整理できます。
■主寝室のWCLには、衣類や荷物をたっぷり収納することができます。
■2階には4部屋。子ども部屋や衣装部屋、テレワークスペースにご利用いただけます。
■バルコニーは、南東向きの大きなボックス型。洗濯物などの家事がスムーズにおこなえます。
■LDKはダイニングスペースをリビングと程よく分けたレイアウト。キッチンから全体が見渡せます。
■階段下にはヌックスペースを設置。リビングを遊び心のある空間に仕上げました。
■広々とした玄関ポーチでは、雨に濡れずに外出の準備ができます。
■洗面室とランドリースペースを分けた、家事がしやすいプランです。
■主寝室のWCLには、衣類や荷物をたっぷり収納できます。
■2階には4部屋あり、子ども部屋や書斎などライフスタイルに合わせてご活用いただけます。
■バルコニーは廊下と主寝室の両側から出入りできます。
■2階廊下の収納スペースには、家族共通の日用品や掃除用具などを整理できます。