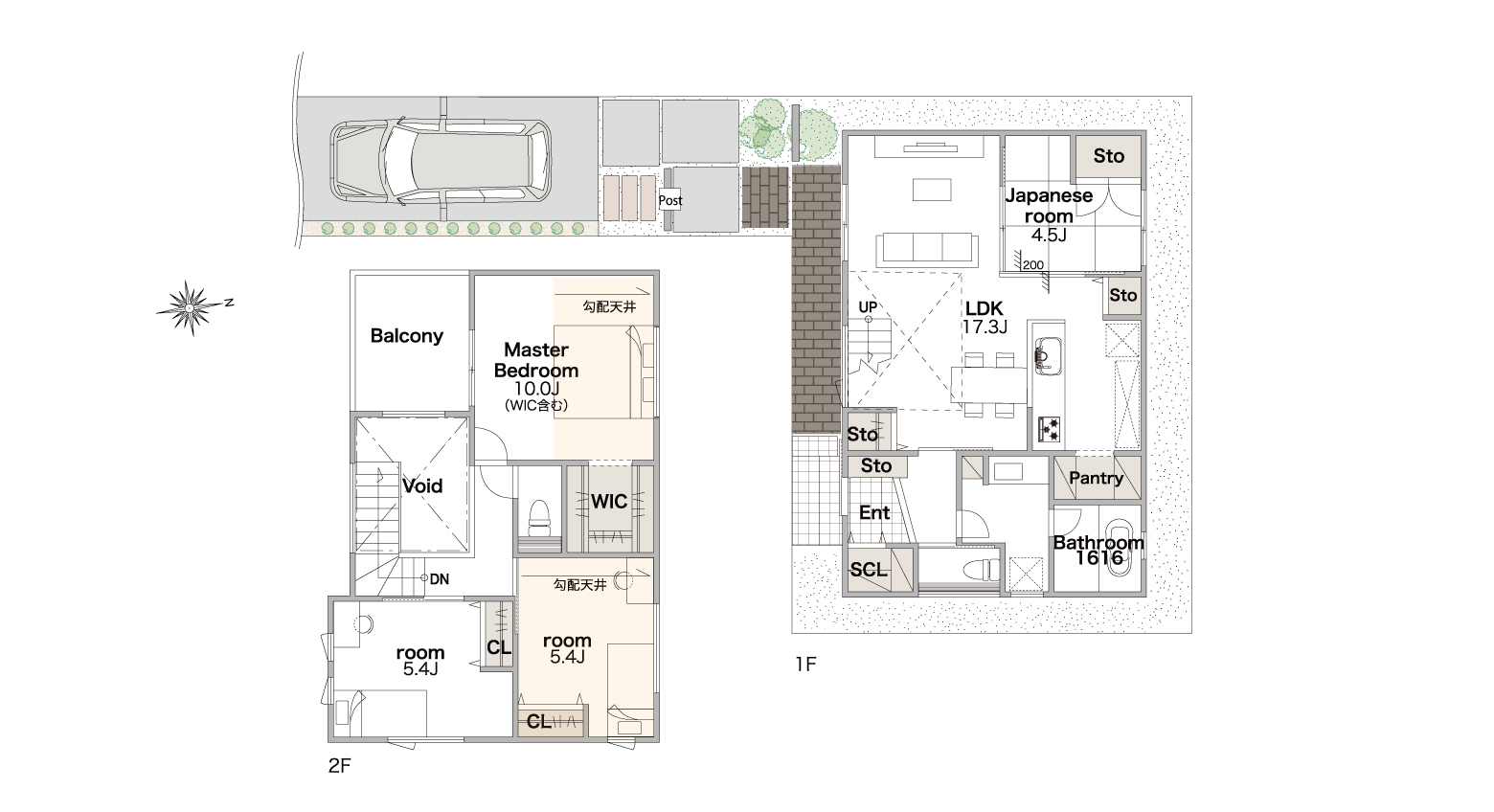
■玄関ホールには大きなシューズクロークがあります。
■洗面室はゆとりのあるサイズ感。玄関ホールからアクセスすることができます。
■20帖超えのリビングには、吹抜スペースがあり開放的です。
■リビングは日差しが差し込むプランニングにこだわりました。
■リビング階段のそばにはヌックスペースがあり、くつろぐことができます。
■2階は4LDK、各部屋に収納も充実しています。
■玄関ホールには広いシューズクロークを配置しています。
■リビング階段と大きな吹抜スペースで開放感を実現しました。
■リビングの一角に小下がりの和室を設置。リラックスできるスペースになっています。
■LDKと和室は、引き戸で空間を仕切ることができます。
■キッチンの横には、ゆとりあるパントリーがあります。
■箱型の大きなバルコニーは陽当たり良好です。