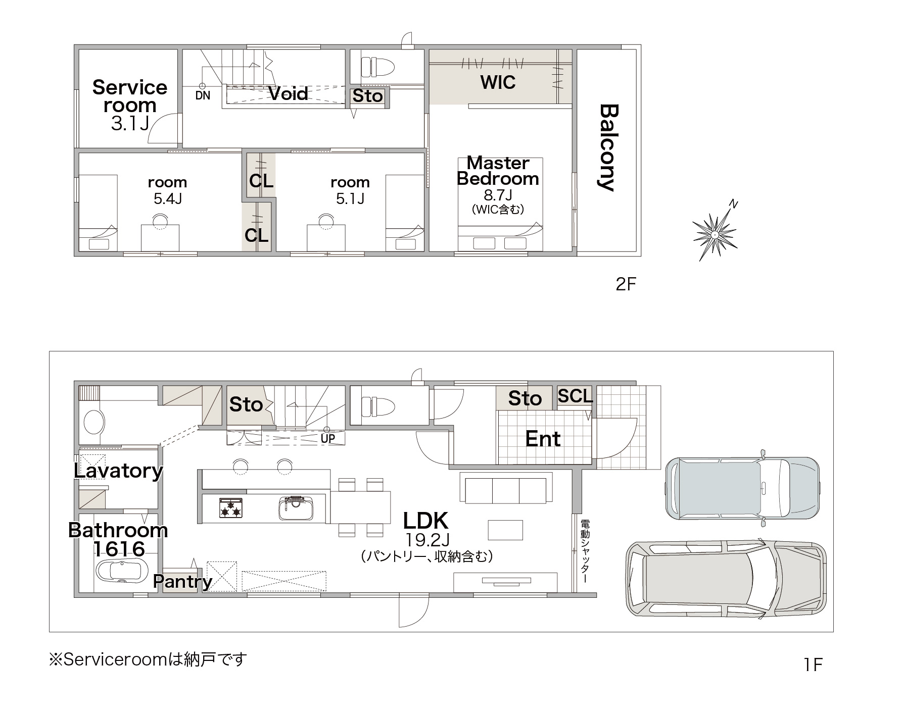
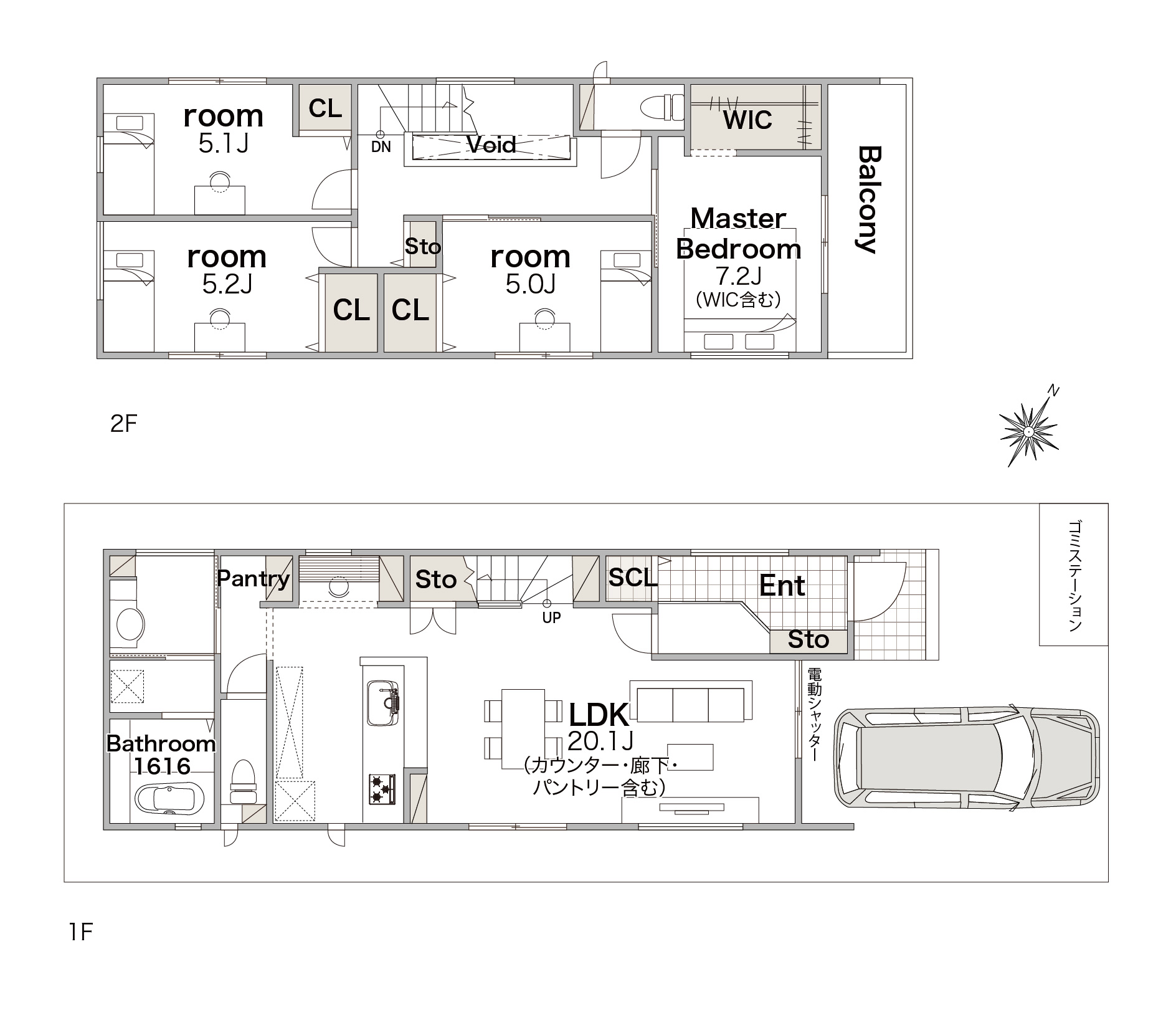
1家族が自然と集まる、広々としたLDKを中心に設計しています。
2玄関のSCLやキッチン横のパントリー、各部屋の収納など、日々の暮らしを支える充実した収納を備えています。
3洗面や脱衣室、トイレなど、水まわりは使いやすさに配慮した設計で、家事や身支度がスムーズに行えます。
4バルコニーをもうけ、光と風を取り込み、快適に過ごせる空間を確保しています。
5敷地に合わせて駐車スペースを設けており、家族のライフスタイルに対応しています。
他のウィルプロデュース物件もぜひご覧ください。
No38 吹田千里山 ▪全38区画 ▪吹田市原町2丁目
池田五月丘AUTHENT-翠彩の街-(建売分譲) ▪全5区画 ▪池田市五月丘4丁目5-27
池田五月丘AUTHENT-翠彩の街-(建築条件なし土地) ▪全26区画 ▪池田市五月丘4丁目5-27
Orii伊丹緑ヶ丘公園 ▪全9区画 ▪伊丹市鋳物師1丁目56
リノ箕面半町2丁目プロジェクト ▪全4区画▪箕面市半町2丁目
Aria宝塚安倉中 ▪全5区画▪宝塚市安倉中5丁目
リノ粟生間谷7丁目プロジェクト ▪全2区画▪箕面市粟生間谷7丁目